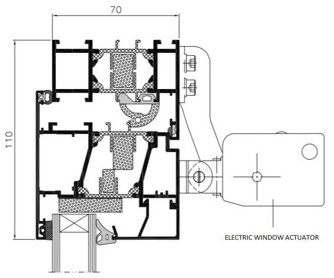
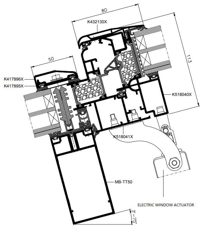
SMOKE EXHAUST WINDOWS AND FLAPS

The smoke exhaust windows and flaps play a particular role in ensuring safety and comfort for the people staying in the building. When properly selected, they are the elements of gravity ventilation, and when necessary they can help to quickly get rid of smoke and toxic vapours which may be dangerous for health and life. The offer for these products is characterised by the diversity of solutions so they can be used in an individual development, as well as elements integrated with aluminium façades or roof glazed panels. They can be based on window systems such as MB-59S, MB-59S Casement, MB-60, MB-60US, MB-70, MB-70US, MB-86, MB-86US and on solutions dedicated to façades, such as tilt-in windows and roof windows. The smoke exhaust and ventilation system is supplemented by aeration windows and doors.

The smoke exhaust windows and flaps can be equipped with reliable and silent mechanisms by D+H, GEZE, and for roof windows – also with drives by ESCO. Different types of actuators, including drives with a large opening force, are available. They can be installed in a single window or in synchronised “Tandem” systems. In spite of their responsible function in building, these structures can be characterised by high aesthetics, which is ensured by the possibility of using small-sized drives installed parallel to the window surface.

The smoke exhaust constructions based on Aluprof systems have been tested in accordance with EN 12101-2 in IFT and VdS institutes and possess documents confirming the achievement of the required technical parameters.

References

HİSAR SCHOOLS

İstanbul, Türkiye

ADANA SANAYİ ODASI

Adana, Türkiye